V/L Zimmerman Road, Traverse City

Driving Directions

$145,000

202 N. First St.
Leland, MI    49654

(415 ) 254-1622
info@manitou-life.com

Listing is courtesy of Three West, LLC
231-929-2955


MLS: #1939502
  • Sale or Lease: False
  • Square Feet: 0
  • Acres: 1.48
  • Business Incl: No
  • Real Estate Incl: None
  • Township: Garfield
  • County: Grand Traverse
  • Business Type: None
  • Location: None
  • Included in Rent: None
  • Zoning: Commercial

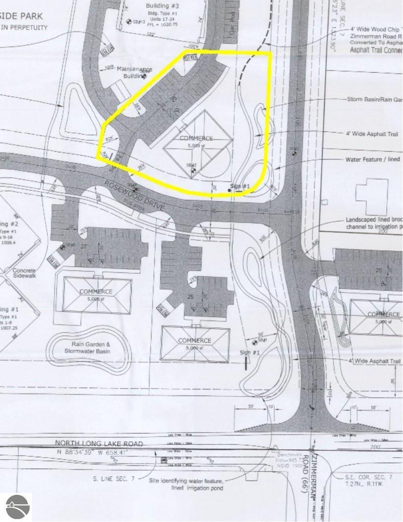
Commercial 1.5 acre parcel in great westside Traverse City location just north of the N. Long Lake Rd. intersection. Three miles west of the Munson Medical campus, a half mile east of West Senior High and close to downtown amenities. Many commercial uses are allowed including office, medical, service, restaurants, and certain retail uses. Multi-family possible with amendment to PUD. All utilities are available at the site including municipal water and sewer. Next to Brookside Commons apartments. Potential for Zimmerman Rd extension to Lone Tree/Harris Roads.

CONTACT US

Interested in
Vacation Stays?

Manitou Life Stays

Interested in Vacation
Property Services?

Manitou Life Services