201 N Mill Street, Northport

Driving Directions

$1,475,000

202 N. First St.
Leland, MI    49654

(415 ) 254-1622
info@manitou-life.com
360 virutal tourVirtual Tour

Listing is courtesy of Coldwell Banker Schmidt-Leland
231-256-9836


MLS: #1940055
  • Sale or Lease: False
  • Square Feet: 4,165
  • Acres: 0.22
  • Business Incl: No
  • Real Estate Incl: Yes
  • Township: Leelanau
  • County: Leelanau
  • Business Type: Food & Beverage, Retail, Other, Bar/Tavern/Lounge
  • Location: Interior Lot
  • Included in Rent: None
  • Zoning: Commercial

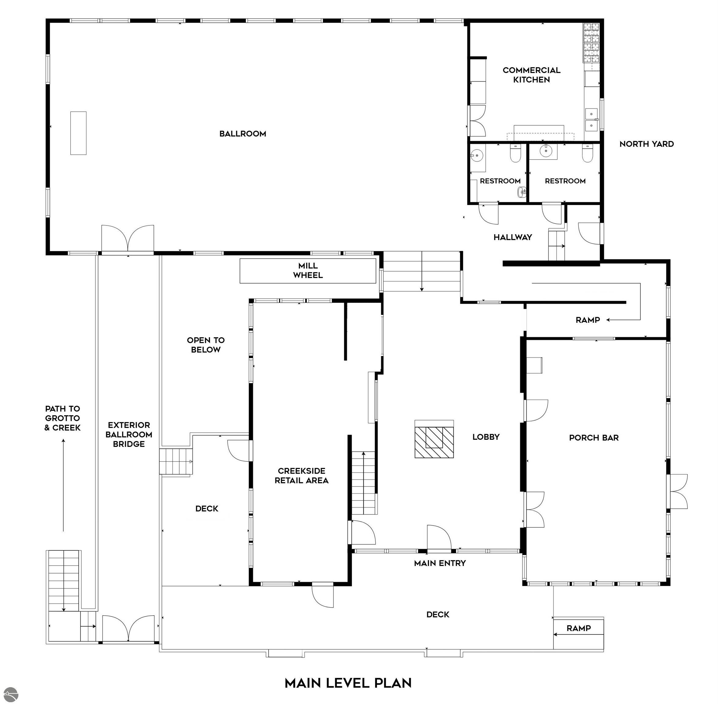
Own one of Northport’s most photographed landmarks–The Willowbrook Mill–an award-winning event venue with scenic frontage along Northport Creek and a vibrant legacy dating back to 1879. This exceptional turnkey investment includes the real estate, established trade name, commercial kitchen equipment, and the highly valuable Class C Liquor License (tied to the property and non-transferable). Significant capital improvements–including major structural upgrades in 2005 and infrastructure enhancements in 2016–mean that the heavy lifting has already been completed. Beautifully restored architecture showcases multiple distinctive spaces: a welcoming lobby with a two-sided stone fireplace, a grand ballroom with rustic wood and stone finishes serviced by a full commercial kitchen, a private porch bar, creekside retail area, intimate creek-level grotto, and a second-floor studio apartment. The irreplaceable creekfront setting and established licensing platform provide a rare opportunity to continue its celebrated event venue tradition or introduce your own elevated commercial concept. Willowbrook Mill is continuing operations and is not going out of business. Business inventory is available separately. A detailed list of included equipment and fixtures is available upon request. Please refer to the residential listing: MLS #1942428

CONTACT US

Interested in
Vacation Stays?

Manitou Life Stays

Interested in Vacation
Property Services?

Manitou Life Services