3800 N 13 Road, Mesick

Driving Directions

$464,900

202 N. First St.
Leland, MI    49654

(415 ) 254-1622
info@manitou-life.com

Listing is courtesy of REO-TCRandolph-233022
231-946-4040


MLS: #1942844
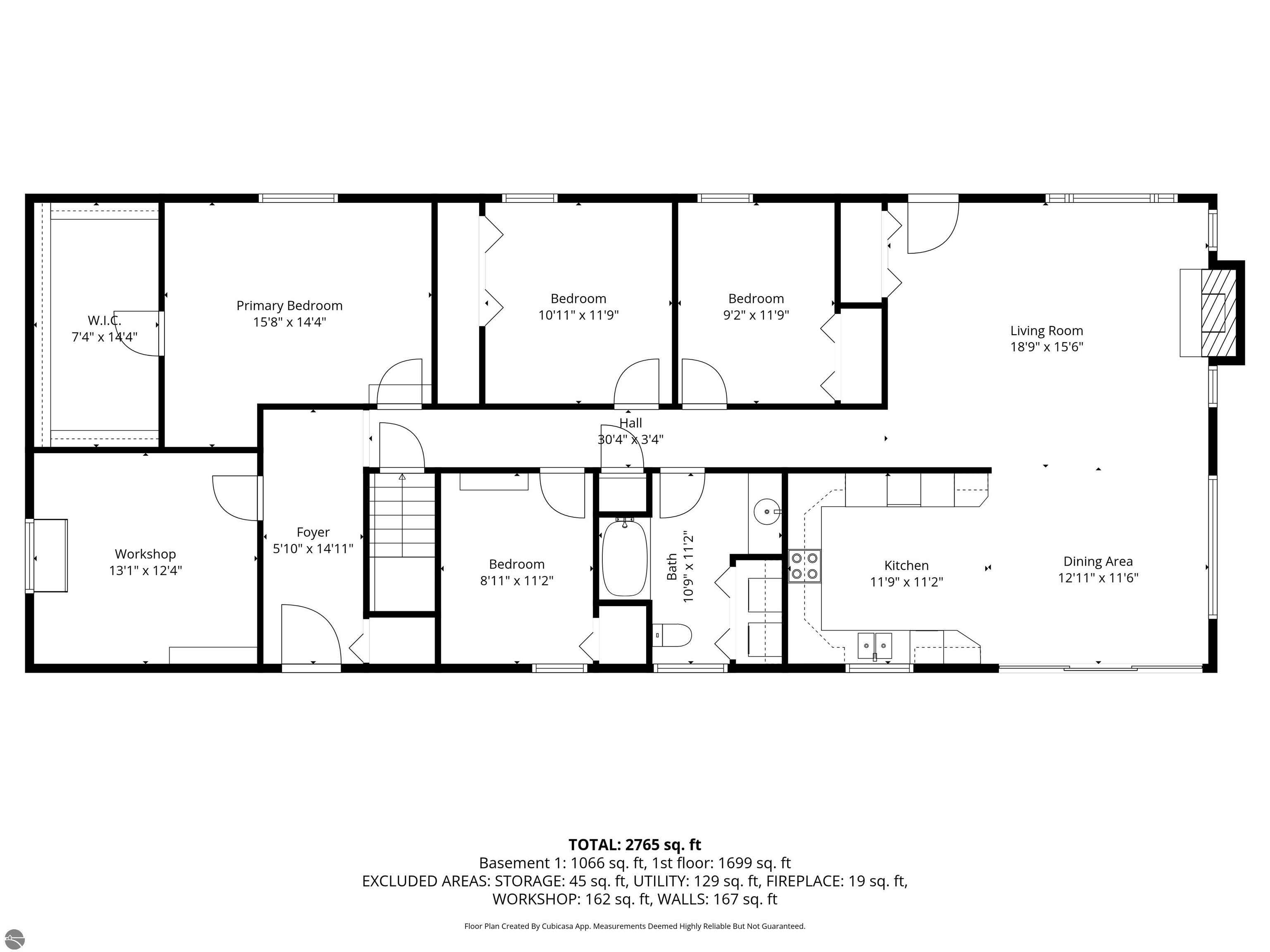
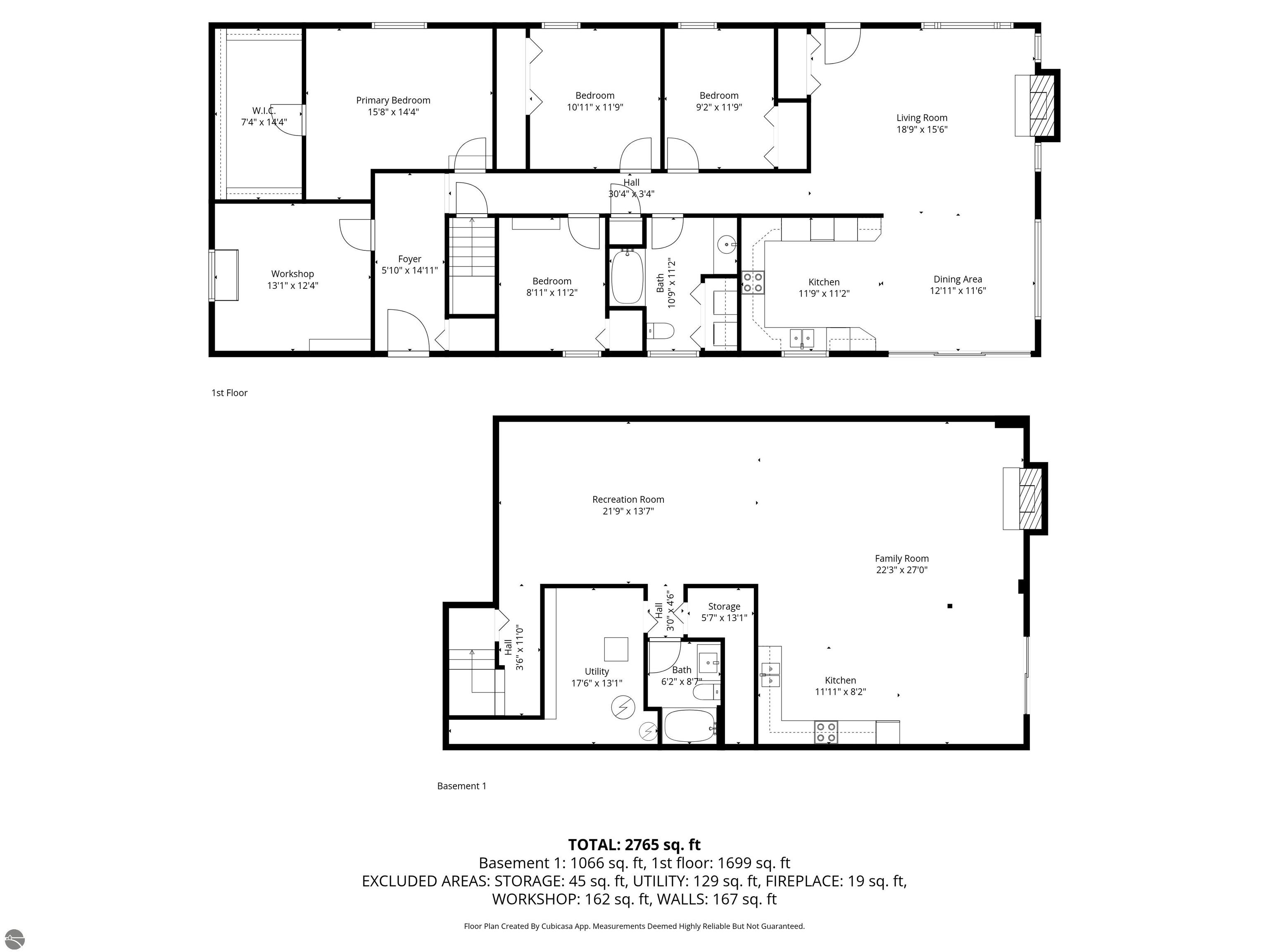
  • Bedrooms: 4
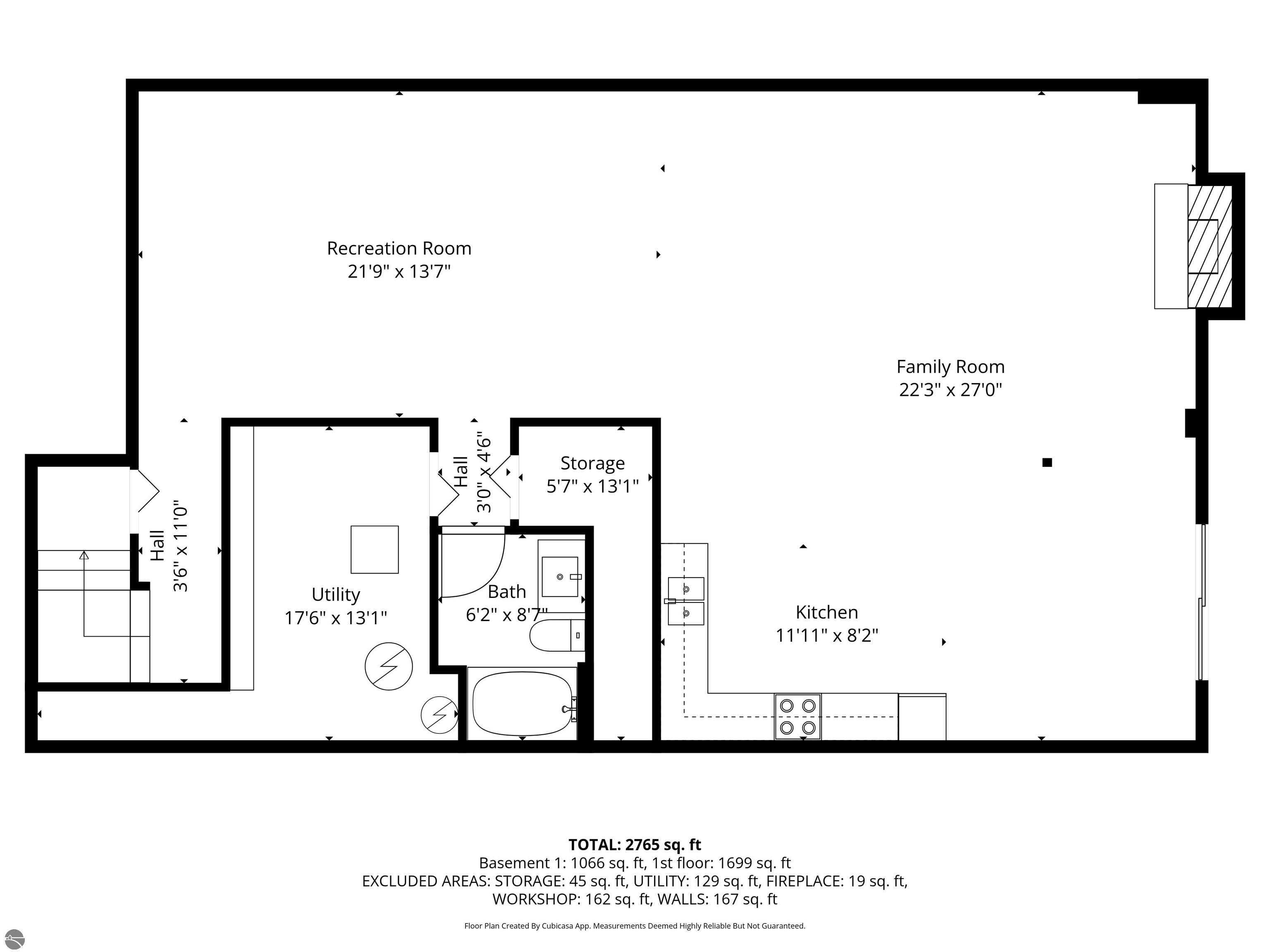
  • Bathrooms: 2
  • Style: Ranch
  • Condo: No
  • Square Feet: 2,765
  • Acres: 20
  • School District: Mesick Consolidated Schools
  • Year Built: 1974
  • Township: Antioch
  • County: Wexford
  • Basement: Full, Walk-Out Access, Exterior Entry, Finished Rooms, Bath/Stubbed, Interior Entry, Block, Slab
  • Garage: Gravel, Dirt, Detached
  • Interior: Entrance Foyer, Walk-In Closet(s), Great Room, Game Room, Workshop, Vaulted Ceiling(s), Cable TV, High Speed Internet
  • Exterior: Countryside View, Garden
  • Appliances: Refrigerator, Oven/Range, Dishwasher, Washer, Dryer, Freezer, Propane Water Heater, Smoke Detector(s)
  • Out Buildings: None
  • Heating/Cooling Source: Forced Air, Baseboard, Fireplace(s), Propane
  • Heating/Cooling Type: Central Air, Electric

Own your slice of Northern Michigan with this spacious walk-out ranch overlooking 20 beautiful acres and the state forest lands beyond. Recently updated and truly move-in ready, the home features wood-burning fireplaces, durable vinyl plank flooring, bright vaulted ceilings, and large windows that fill the space with natural light. The pristine 20-acre property offers private trails winding through hardwoods and pines, creating the perfect habitat for deer and other wildlife. Ideally located between Traverse City, Cadillac, and Manistee, this property is a dream for outdoor enthusiasts with access to hundreds of miles of ORV trails, excellent hunting, and fishing opportunities at the nearby Manistee River and Hodenpyl Dam.

CONTACT US

Interested in
Vacation Stays?

Manitou Life Stays

Interested in Vacation
Property Services?

Manitou Life Services