2135 Hammond Place W, Traverse City

Driving Directions

$369,000

202 N. First St.
Leland, MI    49654

(415 ) 254-1622
info@manitou-life.com
360 virutal tourVirtual Tour

Listing is courtesy of REO-TCRandolph-233022
231-946-4040


MLS: #1943170
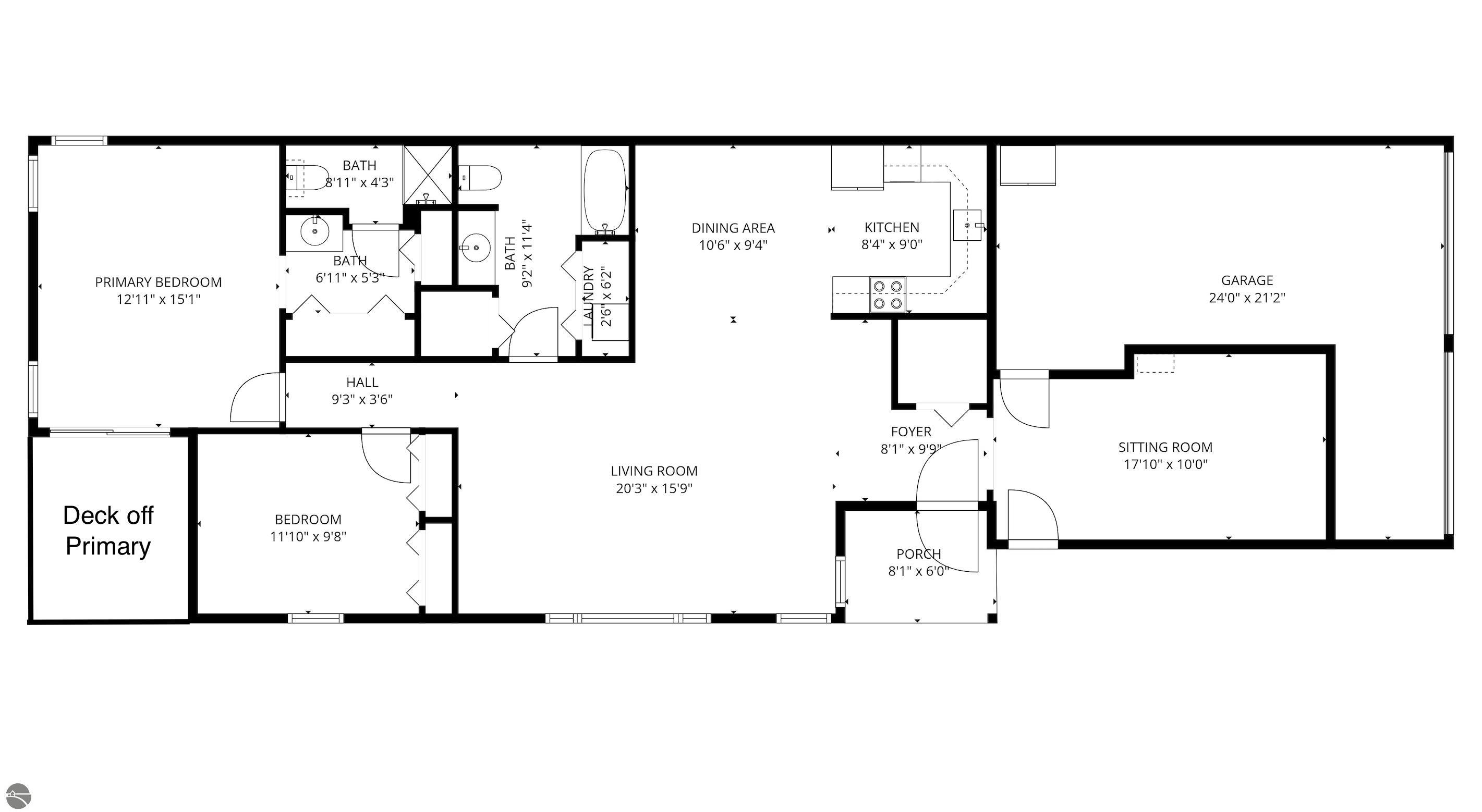
  • Bedrooms: 2
  • Bathrooms: 2
  • Style: Ranch
  • Condo: Yes
  • Square Feet: 1,400
  • Acres:
  • School District: Traverse City Area Public Schools
  • Year Built: 1986
  • Township: Garfield
  • County: Grand Traverse
  • Basement: Crawl Space
  • Garage: Private, Attached, Garage Door Opener
  • Interior: Entrance Foyer, Granite Counters, Den/Study, WiFi
  • Exterior: Sprinkler System
  • Appliances: Refrigerator, Oven/Range, Disposal, Dishwasher, Microwave, Washer, Dryer
  • Out Buildings: None
  • Heating/Cooling Source: Forced Air, Natural Gas
  • Heating/Cooling Type: Central Air

Discover easy, comfortable living in this beautifully maintained 2-bedroom, 2-bath condo in highly desirable Hammond Place. This inviting home features an updated kitchen, a private courtyard entry surrounded by attractive landscaping, and a peaceful patio just off the primary suite—perfect for morning coffee or relaxing evenings. Enjoy access to the community clubhouse and pool. The thoughtful layout offers both functionality and privacy, making it ideal for year-round living or a convenient low-maintenance retreat. Located close to shopping, dining, and everyday amenities, this condo combines comfort, style, and location in one appealing package. Pets are allowed No STR.

CONTACT US

Interested in
Vacation Stays?

Manitou Life Stays

Interested in Vacation
Property Services?

Manitou Life Services